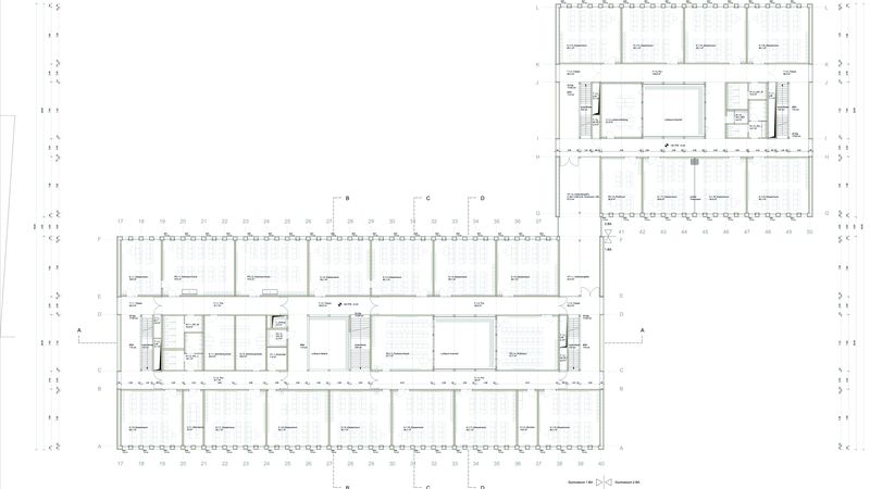
Im Frankfurter Stadtteil Praunheim wurde zum Schulbeginn 2018 ein neues Gebäude des Gymnasiums Nord eingeweiht. Drei zueinander versetzte, kubische Baukörper, die an der Längsfassade verbunden sind, bilden zusammen den Rahmen für das neue Schulgelände. Durch das zurückgesetzte Haupthaus entsteht ein zentraler Eingangsplatz.
Obwohl das Gymnasium erst zwei Jahren zuvor eröffnet hatte, wurde die Erweiterung notwendig. Die erwartet Stadt in den nächsten Jahren einen Anstieg der Schülerzahl um bis zu 20 Prozent. Zwar soll der neue Bau an der Muckermannstraße für das Gymnasium Nord lediglich eine Zwischenlösung sein, doch wann und wo die Schule ihren dauerhaften Standort haben wird, steht noch nicht fest. Die Verantwortlichen richten sich deshalb darauf ein, dass auf dem neuen Campus über einige Jahre unterrichtet wird. Der neue Campus für bis zu 2.000 Schüler umf fasst ein Schulgebäude, eine Mensa und eine Turnhalle, deren Bau rund 26 Millionen Euro kosteten. Es entstanden rund 60 Klassenzimmer auf 3 Etagen aus 210 Modulen mit ca. 8.600 m 2 Bruttogesamtfläche.

Drei zueinander versetzte, kubische Baukörper mit Weißtannenfassade
Der architektonische Entwurf für den Campus stammt von der Raumwerk & Spreen Architekten Arbeitsgemeinschaft. Drei zueinander versetzte, kubische Baukörper, die an der Längsfassade verbunden sind, bilden zusammen den Rahmen für das neue Schulgelände. Durch das zurückgesetzte Haupthaus entsteht ein zentraler Eingangsplatz. Die Weißtannen-Fassaden sind mit vorvergrauender Lasur behandelt worden. Das eloxierte, silberne Aluminiumblech an den Fensterlaibungen schafft ein Wechselspiel der Materialien. Bei der Innengestaltung fallen die raumhohen Fenster und die vielen großen, weiß lasierten Holzoberflächen auf.

Holzraummodule bieten kurze Montagzeiten und schöne Räume
Als Bauherr hat sich die Stadt Frankfurt, genauer der von Baudirektor Harald Heußer geleitete Projektbereich Bildung des Amtes für Bau und Immobilien, für die Modulbauweise entschieden. „Wir haben eine Alternative zu den üblichen Stahlcontainern gesucht. Auf dem Markt gab es kein Bausystem, das sowohl sehr schnell, als auch architektonisch hochattraktiv ist. Da haben wir geneinsam mit kompetenten Holzbaufirmen selbst ein solches System für Schulen entwickelt. Holzraummodule bieten beides: Montagezeiten von nur fünf Monaten, aber trotzdem Schulen mit wunderschönen Räumen.“, sagt Harald Heußer. Neben der kurzen Bauzeit legte der Bauherr großen Wert auf guten, sommerlichen Wärmeschutz und Schallschutz sowie einen hohen Anteil an sichtbaren Holzoberflächen im Innenbereich.

Herausforderung auf der Baustelle: 18 Meter lange und 2,80 Meter Breite OSB-Platten
Die Herstellung der Module verantwortete das Unternehmen Erne AG Holzbau. In den Modulen der Frankfurter Schule kam OSB als Schalungstische in den Decken , bei der fugenlosen Vorfertigung der Bodenelemente und als Schablone für die Vormontage der Wandelemente zum Einsatz. Die großen Maße beschleunigten die Vorfertigung, da nicht mehrere Platten zugeschnitten und zusammengesetzt werden mussten. Die durchgängigen Wände ohne Fugen weisen außerdem bessere Werte hinsichtlich Schallschutz auf und wirken sich positiv auf die Energieeffizienz aus.

Im Schweizerischen Stein wurden die Holzbaumodule millimetergenau vorgefertigt. Das Holzbau-Unternehmen verarbeitete bereits bei mehreren Objekten Swiss Krono Longboard OSB. Das brandenburgische Holzwerkstoffunternehmen ist weltweit der einzige Produzent, der Platten bis zu 18 Meter Länge und 2,80 Meter Breite herstellen und transportieren kann. „Mit Erne AG Holzbau verbindet uns seit vielen Jahren eine gut funktionierende Kooperation“, sagt Uwe Jöst, Geschäftsführer. „Dieses Holzbau-Unternehmen war auch der Impulsgeber für die großformatigen OSB-Platten, für die wir unsere Logistik angepasst haben, um ein reibungsloses Handling der großen Platten zu gewährleisten.“
Neubau: Schule in Holz-Modulbauweise
Auf der Baustelle lag die Herausforderung im Umgang mit den bis zu 18 Meter langen und rund 20 Tonnen schweren Modulen. Per Kran wurde jedes einzelne der 210 Module an seinen Bestimmungsort transportiert und präzise montiert. Drei Module bilden einen rund 60 m 2 großen Klassenraum. Und so entstand binnen weniger Wochen das dreigeschossige Hauptgebäude des Campus.
Kühlung in der Holz-Beton-Verbund Decke
Um die Kühlung der Klassenräume in heißen Sommermonaten sicherzustellen, arbeitet der Holzbauunternehmer mit patentierter SupraFloor ecoboost 2 Technologie: In die Holz-Beton-Verbund-Decke ist ein herkömmliches Heiz-Kühl-System integriert, das mit Wasser funktioniert. Zusätzlich wird mit verwirbelter Luft klimatisiert. Die Innovation ist, dass der Beton als aktiver Speicher für Wärme und für Kälte genutzt wird. Der Beton nimmt die Temperaturen ausgezeichnet auf und gibt sie langsam wieder ab, wodurch er sowohl kühlend als auch wärmend eingesetzt wird. Das einzigartige System vereint das geringe Gewicht und die hohe Zugfestigkeit von Holz mit der Druckfestigkeit und der Masse von Beton zu einem optimierten Tragelement.

Die Kombination von Holz, Beton und der Deckenklimatisierung mit aktiver Speichermasse spart bis zu 30 Prozent Energie ein. „Lüftung, Kühlung, Heizung, Akustik, Leuchten und Sprinkler – alles steckt vorgefertigt in den Decken“, sagt Thomas Wehrle, Mitglied der Geschäftsleitung Erne AG Holzbau. In diesem Schulgebäude kommt das Holz-Hybrid-Bausystem erstmals als vorgefertigtes Deckenelement in modularer Bauweise im deutschsprachigen Raum zum Einsatz.
Neubau: Schule in Holz-Modulbauweise